Studentenwohnen "VIVO@PHOENIX" in Hamburg
verkauft!
Inhaltsverzeichnis der Studentenimmobilie / Denkmalimmobilie in Hamburg
Daten & Fakten
| Objekt-ID | DA00163 |
| Standort | Hamburg |
| Baujahr | 1929 |
| Flächen | 15,00 m² - 35,92 m² |
| anfängliche Mietrendite | 3,85 % - 4,31 % |
| Kaufpreise | 81.750,00 € - 188.580,00 € |
| Anzahl der Gesamteinheiten | 167 |
| Sanierungsanteil | 63 % |
| Preis pro m² | ab 5.250,00 € |
| Nutzungsart | Studenten |
| Immobilientyp | Denkmal |
| AfA nach Baujahr | ab 1925 (2,0% á 50 Jahre) |
| Fertigstellung Sanierung | 10-2017 |
Objektbeschreibung der Studentenimmobilie in Hamburg (Denkmalimmobilie)
Die imposante Werksfront der PHOENIX AG wurde im Jahr 1929 / 30 erbaut und im Jahr 1936 mit einem neuen Anbau versehen. Über mehrere Generationen hinweg prägt dieser Bau das gesamte Phoenix-Areal. Als historische Industrieanlage steht sie für das Zeugnis deutscher Industriegeschichte. Das alte Verwaltungsgebäude der Phoenix-Werke wurde deshalb im Jahr 2001 unter Denkmal gestellt.
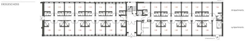
Nun soll es zum neuen Leben erweckt werden und zu einem Studentenwohnheim mit 167 Apartments hergerichtet werden. Die umfangreichen Sanierungsarbeiten sollen bis 2017 fertiggestellt werden und zum Anfang des Wintersemesters bezugsfertig sein.
162 Singleapartments und 5 Doppelapartments sind geplant und sollen hier umgesetzt werden. Die Apartments werden vollmöbliert sein und über eine Pantry-Küche und ein Bad verfügen. Eine moderne technische Ausstattung mit Anschlüssen für Highspeed-Internet und SAT-TV sind selbstverständlich.
Ein großer Lounge-Bereich mit Flat-TV und einer Einbauküche runden dieses Angebot ab und bieten den Studenten die Möglichkeit für regen Austausch und das pflegen von sozialen Kontakten. Ein Aufzug wird ebenfalls in dem Studentenwohnheim vorhanden sein, mit dem man alle Etagen problemlos erreicht. Fahrradräume sowie Wasch- und Trockenräume ergänzen dieses ganze noch.
Dadurch das dieses Studentenwohnheim ein eigetragenes Baudenkmal ist, ergibt sich hier für Kapitalanleger und Eigennutzer eine erhöhte AfA gemäß §7i EStG und §10f EStG, was ein Investment noch interessanter gestaltet. Ein weiterer Vorteil bietet die optionale Entscheidung einem Mietpool beizutreten, wodurch die eigene Arbeit am Studentenheim auf ein Minimum herabsetzt wird und auch Mietzahlungen bei Leerstand gewährleistet werden.
Standort: Hamburg
Die Freie und Hansestadt Hamburg ist Stadt-Staat, als Land und Kommune, Millionen-Stadt, Metropole und mit rund 1,75 Mio. Einwohner die zweitgrößte Stadt in der Bundesrepublik. Weiterhin ist Hamburg die achtgrößte Stadt in der EU und die einzige dieser acht, die keine Hauptstadt ist. Hamburg beherbergt weiterhin den zwanziggrößten Containerhafen der Welt und zugleich den größten Seehafen in der Bundesrepublik Deutschland. Hamburg ist eines der beliebtesten Tourismusziele in Deutschland. Hamburg hat über 60 Museen und über 60 Theater. Die Musicalhauptstadt Deutschlands ist gleichzeitig die Nummer 3 in der Welt.
Hamburg gilt als eine der wichtigsten Metropolen in Europa. "Das Tor zur Welt", wie sich die Stadt Hamburg selbst bezeichnet ist einer der besten Standorte um Geld sicher zu investieren. Trotz der im deutschen Vergleich hohen Preise ist Hamburg in internationalen Vergleich verhältnismäßig günstig.
Ausstattung
Im Studentenwohnheim sind 167 Apartments auf 6 Geschossen geplant. 162 Singleapartments und 5 Doppelapartments. Die Apartments werden voll möbliert sein und mit einer Pantry-Küche mit Spüle, Ceran-Kochfeld, Mikrowelle, Kühlschrank ausreichend Stauraum sowie ein eigenes Bad mit WC und Dusche ausgestattet sein. Weiterhin wird jedes Apartment über Highspeed Internet und SAT-TV verfügen. Ein Lounge-Bereich mit großer Einbauküche und Flat-TV, ein Fahrrad- Wasch- und Trocknerraum steht für die Gemeinschaft zur Verfügung
Objektansichten der Studentenimmobilie / Denkmalimmobilie in Hamburg
Energieangaben
Bei Denkmalimmobilien ist ein Energieausweis nicht notwendig.
Bausubstanz
5Objekt in massiver Bauweise errichtet und wird saniert.
Standort: Makro
Standort: Mikro
Mietausfallrisiko
4Die große Anzahl an Studenten und die super Lage in Hamburg versprechen hohe Auslastungen.
Immobilien spezifische Qualität
5Gutes Immobilieninvest mit guter Lage und attraktiven Steuervorteilen.
