Schäffler-Häuser am Park
verkauft!
Inhaltsverzeichnis der Wohnimmobilie / Denkmalimmobilie in Bamberg
Daten & Fakten
| Objekt-ID | DA00134 |
| Standort | Bamberg |
| Objektart | Mehrfamilienhaus |
| Baujahr | 2014 |
| Flächen | 58,60 m² - 117,85 m² |
| anfängliche Mietrendite | 3,54 % |
| Kaufpreise | 202.491,00 € - 435.200,00 € |
| Anzahl der Gesamteinheiten | 32 |
| KfW Standard | KfW Denkmal |
| Sanierungsanteil | 70 % |
| Preis pro m² | ab 2.845,00 € |
| Immobilientyp | Denkmal |
| AfA nach Baujahr | ab 1925 (2,0% á 50 Jahre) |
Objektbeschreibung der Wohnimmobilie in Bamberg (Denkmalimmobilie)
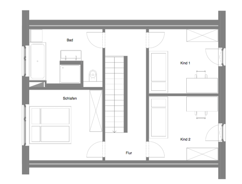
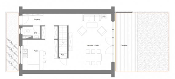
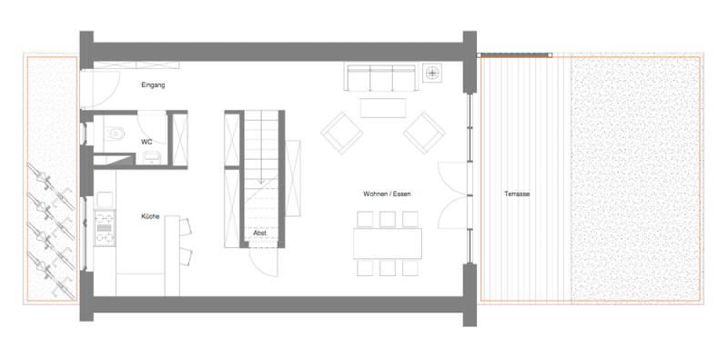
Im schönen Bamberg entstehen, unter einer historischen Stahlträger- und Dachkonstruktion, 32 von 66 Wohnungen im Reihenhausstil. Diese Eigentumswohnungen werden rund 117 qm umfassen, modern geschnitten und ausreichend Platz bieten. Helle bodentiefe Fenster durchfluten die Zimmer mit Licht. Ein großer und großzügiger Wohn/- Essbereich wird schnell zum Lebensmittelpunkt für die ganze Familie. Ein Wohlfühlbad mit Tageslicht, ein Elternschlafzimmer und zwei Zimmer für die Kinder finden hier ihren Platz. Einen Balkon oder eine Terrasse gehören selbstverständlich zu den Ausstattungsmerkmalen und bieten einen wunderschönen Blick ins Grüne.
Die Häuser sehen aber nicht nur schön aus, sondern werden auch nach neuster Energieeffizienzklasse KfW 70 erbaut. Die "Schäffler-Häuser am Park" bieten noch einen weiteren Vorteil für Anleger. Da es sich hier um eine Denkmalimmobilie mit einem Sanierungsanteil von 70 % handelt, bringt dieses Investment interessante Steuerersparnisse ein.
Standort: Bamberg
Bamberg gilt als größtes Zentrum in Oberfranken und befindet sich im Mittelpunkt eines Ballungsgebietes von ca. 350.000 Einwohnern und ist gleichzeitig an die Metropolregion Nürnberg angebunden. Aber Bamberg hat als Universitätsstadt nicht nur eine tolle Infrastruktur, sondern gehört auch zu den stärksten Wirtschaftsstandorten in der Umgebung. Auch in Sachen Kultur hat Bamberg einiges zu bieten, ob Bamberger Symphoniker oder Brose Baskets hier kommt jeder auf seine Kosten. Unterschiedlichste Möglichkeiten zur Freizeitgestaltung und Naherholung sorgen für außergewöhnlich hohe Lebensqualität. Ein Faktor, der im Wettbewerb um qualifizierte Nachwuchskräfte von unschätzbarem Vorteil ist. Beste Voraussetzungen für eine nachhaltige Bevölkerungsentwicklung und damit einen dauerhaft stabilen Immobilienmarkt.
Ausstattung
Für die "Schäffler-Häuser am Park" wurden 7 verschieden Stilwelten entwickelt und umgesetzt. Alle Konzepte bieten ein einmaliges und stimmiges Wohnambiente.
Alle Wohnungen sind großzügig geschnitten und durch Bodentiefe Fenster lichtdurchflutet. Die Bäder sind modern gestaltet und besitzen ein Fenster. Eine Terrasse sowie ein Balkon gehören ebenso zu den Ausstattungsmerkmalen. Jede Wohnung verfügt weiterhin über einen Kellerraum der genug Stauraum für Kanu, Schlitten und Gartenmöbel bietet.
Objektansichten der Wohnimmobilie / Denkmalimmobilie in Bamberg
Energieangaben
Bei Denkmalimmobilien ist ein Energieausweis nicht notwendig.
