Residenz Wasserwerk Saloppe
verkauft!
Inhaltsverzeichnis der Wohnimmobilie / Denkmalimmobilie in Dresden
Daten & Fakten
| Objekt-ID | DA00129 |
| Standort | Dresden |
| Objektart | Mehrfamilienhaus |
| Baujahr | 1872 |
| Flächen | 92,05 m² - 320,00 m² |
| anfängliche Mietrendite | 3,23 % - 3,39 % |
| Kaufpreise | 478.943,00 € - 1.584.500,00 € |
| Anzahl der Gesamteinheiten | 30 |
| KfW Standard | KfW Denkmal |
| Sanierungsanteil | 55 % |
| Preis pro m² | ab 4.850,00 € |
| Immobilientyp | Denkmal |
| AfA nach Baujahr | vor 1925 (2,5% á 40 Jahre) |
Objektbeschreibung der Wohnimmobilie in Dresden (Denkmalimmobilie)
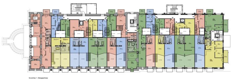
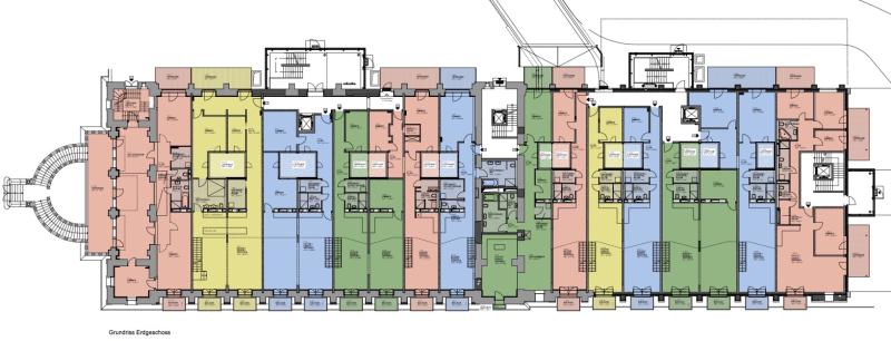
In der sächsischen Landeshauptstadt Dresden steht das wunderschöne Wasserpalais Saloppe zum Verkauf. Die 1872 im neoromanischen Stil errichtete Immobilie war bis 1993 als Wasserwerk im Betrieb und wird seit 2015 komplett saniert und in mehrere Wohneinheiten aufgeteilt. Es werden insgesamt 30 neue Wohneinheiten mit Gesamtgrößen von 93 Quadratmeter bis 203 Quadratmeter gebaut. Die Ausstattung lässt keine Wünsche offen und die herrliche unverbaute Lage, bietet einen einzigartigen Blick auf die Elbe. Die zerstörten Gebäudeteile aus dem zweiten Weltkrieg werden im Zuge der Sanierung erneuert. Die neuen Turmspitzen und eine Gedenktafel, sind nur einige der einzigartigen Merkmale dieser Immobilie. Die Parkanlage, die um das Wasserpalais Saloppe Dresden angelegt wird, kann allein von den zukünftigen Bewohnern genutzt werden.
Standort: Dresden
Dresden, die Landeshauptstadt des Freistaates Sachsen ist mit rund 536.000 Einwohner die bevölkerungsreichste Stadt in Sachsen. In Dresden ist unteranderem der Sitz der sächsischen Landesregierung, des Landtags und zahlreicher Landesbehörden. Durch viele repräsentative Bauten ist Dresden international bekannt. Die futuristische Altstadt, die wieder aufgebaute Frauenkirche, die weltberühmte Semperoper sowie der Zwinger sind nur einige der bekanntesten Bauwerke Dresdens. Als Landeshauptstadt des Bundeslandes Sachsen gehört Dresden heutzutage zu den Top Standorten in den neuen Bundesländern. Namenhafte Wirtschaftsunternehmen wie Volkswagen, AMD und Siemens haben sich in Dresden niedergelassen. Durch die teilweise neu gebauten oder sanierten Autobahnen können die nächst größeren Städte wie Leipzig, Chemnitz oder Berlin schnell erreicht werden.
Ausstattung
Die hochwertige Ausstattung der einzelnen Wohneinheiten lässt keine Wünsche offen. Alle Wohnungen werden mit edlem Echtholzparkett und einer Fußbodenheizung ausgestattet. Diese ist vor allem in kühleren Wintertagen ein Segen. In den Küchen und Fluren wird ein robuster Fliesenbelag verlegt. Bodentiefe Duschen und hochwertige Sanitärelemente von Meissen und Villeroy & Boch werden in den Bädern verbaut. Die Balkone oder Terrassen, über die jede Wohnung verfügt, verleihen den Einheiten einen besonderen Charme und passen perfekt zu dieser Denkmalimmobilie. Per Aufzug lassen sich die 59 Tiefgaragenplätze sowie die 10 Gästestellplätze bequem erreichen. Die 5 Außentüren und das Haupttor sind mit Kameras versehen und können mit der Gegensprechanlage geöffnet oder geschlossen werden. Die professionelle Hausverwaltung IFM Immobilienverwaltungsgesellschaft mbH, sowie der Gärtnerservice nehmen Ihnen viel Arbeit ab und erleichtern Ihren Wohnalltag.
Objektansichten der Wohnimmobilie / Denkmalimmobilie in Dresden
Energieangaben
Bei Denkmalimmobilien ist ein Energieausweis nicht notwendig.
Bausubstanz
5Die 1872 erbaute Denkmalimmobilie Wasserpalais Saloppe wird seit 2015 komplett saniert und steht einer modernen Immobilie in nichts nach.
Standort: Makro
Standort: Mikro
Mietausfallrisiko
4Dresden ist so beliebt wie noch nie. Durch die tolle Elb-Lage ist diese Immobilie einzigartig.
Immobilien spezifische Qualität
5Diese repräsentative Immobilie bietet modernes Wohnen der Extraklasse.
