Ottilie-von-Hansemann-Haus
verkauft!
Inhaltsverzeichnis der Wohnimmobilie / Neubauimmobilie in Berlin
Daten & Fakten
| Objekt-ID | DA00191 |
| Standort | Berlin |
| Objektart | Mehrfamilienhaus |
| Flächen | 30,00 m² - 131,00 m² |
| Kaufpreise | 174.298,00 € - 406.825,00 € |
| Anzahl der Gesamteinheiten | 38 |
| Immobilientyp | Neubau |
| AfA nach Baujahr | ab 1925 (2,0% á 50 Jahre) |
Objektbeschreibung der Wohnimmobilie in Berlin (Neubauimmobilie)
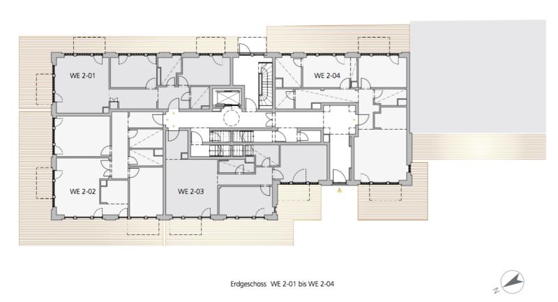
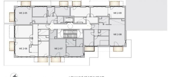
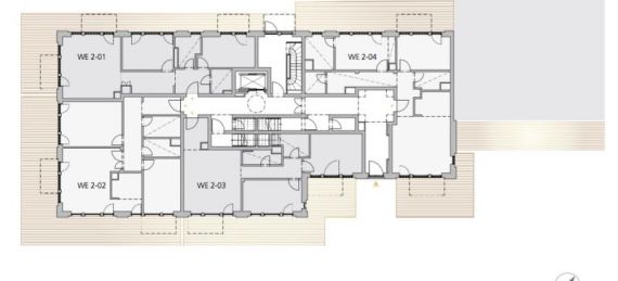
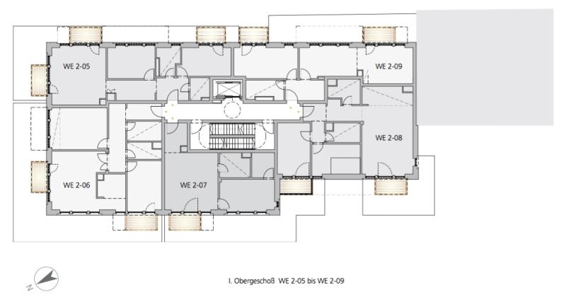
In der Otto-Suhr-Allee 18/20, im Berliner Stadtteil Charlottenburg entsteht ein hoch modernes und luxuriöses Mehrfamilienhaus. Die stilvolle helle Klinkerfassade lässt diese Immobilie in einem besonderen Licht erstrahlen. Die 30 Wohnungen werden Grundflächen von ca. 30 qm bis ca. 131 qm erhalten. Die Highlights der 1 bis 3 Zimmerwohnungen sind die großen Balkone und Terrassen, auf denen man seinen Alltagsstress schnell vergessen kann. Selbstverständlich gibt es zu den Wohnungen dazugehörige Kellerräume, die zusätzlichen Stauraum bieten. Wie in ganz Berlin sind in Charlottenburg PKW-Stellplätze sehr begehrt und knapp vorhanden. Deshalb befinden sich im Untergeschoss des Hauses zahlreiche Stellplätze, die von den Eigentümern genutzt werden können.
Standort: Berlin
Berlin ist als Hauptstadt der Bundesrepublik Deutschland für seine vielen Sehenswürdigkeiten bekannt. Der Deutsche Bundestag, das Brandenburger Tor, der Ku'damm oder auch das Olympiastadion locken jährlich viele tausend Touristen in eine der größten Metropolen Deutschlands. Die Berliner Museumsinsel gehört seit einigen Jahren zum UNESCO-Weltkulturerbe und gilt als eines der berühmtesten Museumskomplexe der Welt. Die Universitäts- und Fachhochschuldichte ist nirgendwo in Deutschland größer, als in der Region Brandenburg-Berlin. Die rund 3,5 Millionen Einwohner verteilen sich auf insgesamt 12 Bezirke. Neben den großen Waldgebieten besitzt Berlin auch viele Parkanlagen, die vor allem im Sommer viele Familien mit ihren Kindern anlocken. Zudem haben sich zahlreiche Strandbars haben sich an der Spree niedergelassen und bieten den Besuchern ein ganz besonderes Flair. Am Leipziger Platz eröffnete im Juni 2014 die modernste Shopping-Mall Deutschlands, die für fast eine Milliarde Euro gebaut wurde.
Diese Immobilie befindet sich in Berlin Charlottenburg. Die rund 125.000 Einwohner Charlottenburgs, leben in einem der beliebtesten Stadtteile Berlins. Die Nähe zum Stadtzentrum und die sehr gute Infrastruktur sprechen für diesen Standort.
Ausstattung
Die Eigentumswohnungen sind hochwertig und modern ausgestattet. Die Wohn- und Schlafräume erhalten einen Eichen-Dielenboden, dessen Oberfläche geölt wurde. Das offene Raumkonzept mit Wohnküchen ist nicht nur besonders modern, sondern begeistert durch die tolle Umsetzung junge sowie ältere Bewohner. Zudem werden die Küchen, Badezimmer und Abstellräume hochwertig gefliest. Diese Immobilie verfügt zudem über eine Zugangskontrolle an allen Eingängen, einen Aufzug bis in die Tiefgarage und einen Videoporter in jeder Wohnung. Dieses 7 geschossige Mehrfamilienhaus grenzt an einen wunderschön gestalteten Innenhof, der besonders im Sommer durch seine Grünflächen und die architektonische Gestaltung ein wahrer Blickfang ist.
Objektansichten der Wohnimmobilie / Neubauimmobilie in Berlin
Energieangaben
Zum gegenwärtigen Zeitpunkt liegt uns noch kein Energieausweis für diese Immobilie vor.
Bausubstanz
5Durch die hochwertige Bauweise, ist diese Immobilie ein echter Blickfang.
Standort: Makro
Standort: Mikro
Mietausfallrisiko
5Die hervorragende Lage und die Attraktivität der Häuser, senken das Ausfallrisiko.
Immobilien spezifische Qualität
5Der hervorragende Standort und das erstklassige Ambiente sprechen für sich.
